La promoción
La promoción de Catalunya 26 es un proyecto residencial de nueva construcción situado en el centro de Montgat, en un entorno tranquilo y bien comunicado, a pocos minutos de la playa y con acceso directo a Barcelona.
El edificio está compuesto por 18 viviendas diseñadas con una clara vocación de funcionalidad, confort y calidad constructiva, con diversas tipologías que incluyen viviendas con amplias terrazas, pisos familiares y dúplex en la planta superior con grandes espacios exteriores y una gran versatilidad de uso.
Las viviendas de planta baja destacan por sus terrazas privadas y por una altura libre interior superior a la habitual, aportando una sensación de amplitud y luminosidad. En las plantas intermedias, las viviendas ofrecen distribuciones equilibradas pensadas para el día a día, mientras que en la planta superior los dúplex ofrecen espacios amplios, terrazas generosas y la posibilidad de una configuración flexible que se adapta a diferentes necesidades familiares.
El proyecto incorpora una zona comunitaria con solárium, concebida como un espacio de descanso y convivencia para los residentes, así como plazas de aparcamiento en el propio edificio para garantizar comodidad y funcionalidad.
Catalunya 26 se ha proyectado con criterios de eficiencia energética y con una especial atención a la calidad de los materiales y de los acabados, con el objetivo de crear viviendas confortables, eficientes y pensadas para perdurar en el tiempo.
Una promoción que combina ubicación, calidad constructiva y diseño funcional para ofrecer un espacio donde vivir con tranquilidad, cercanía y calidad de vida.
La ubicación
Catalunya 26 se encuentra en el municipio de Montgat, una de las localidades mejor situadas del Maresme, que combina el encanto de un entorno tranquilo con la proximidad inmediata a Barcelona. Su ubicación permite disfrutar de un estilo de vida relajado, con el mar a pocos minutos, sin renunciar a todos los servicios y conexiones de la capital.
El edificio está situado en una zona consolidada del núcleo urbano, con comercios de proximidad, equipamientos y servicios esenciales a poca distancia a pie, facilitando el día a día con comodidad. La cercanía a la playa permite disfrutar del entorno natural y del paseo marítimo, uno de los principales atractivos de la zona.
En la imagen de localización se identifica la ubicación de Catalunya 26 (marcada con un punto rojo), así como otras promociones ya desarrolladas por la promotora en el entorno inmediato, Pau Alsina 17-19 y Pau Alsina 12 (marcadas con un punto blanco), que reflejan la experiencia y presencia de la promotora en la zona.
Montgat destaca también por sus excelentes conexiones de transporte. Dispone de fácil acceso a Barcelona tanto en vehículo privado como en transporte público, con estación de tren cercana y conexión rápida con las principales vías de comunicación, lo que permite llegar al centro de la ciudad en pocos minutos.
El municipio ofrece un entorno residencial tranquilo y familiar, con zonas verdes, centros educativos, servicios deportivos y una buena oferta comercial, convirtiéndose en una opción ideal tanto como residencia habitual como para quienes buscan calidad de vida cerca del mar.
Catalunya 26 permite disfrutar de un equilibrio entre tranquilidad y conexión urbana, en un entorno consolidado y con una clara proyección de valor, donde la proximidad al mar y a Barcelona se convierten en sus principales activos.
Las viviendas
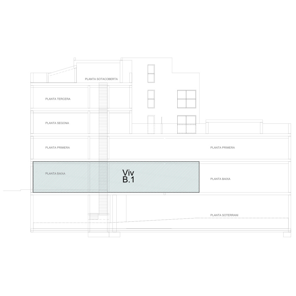
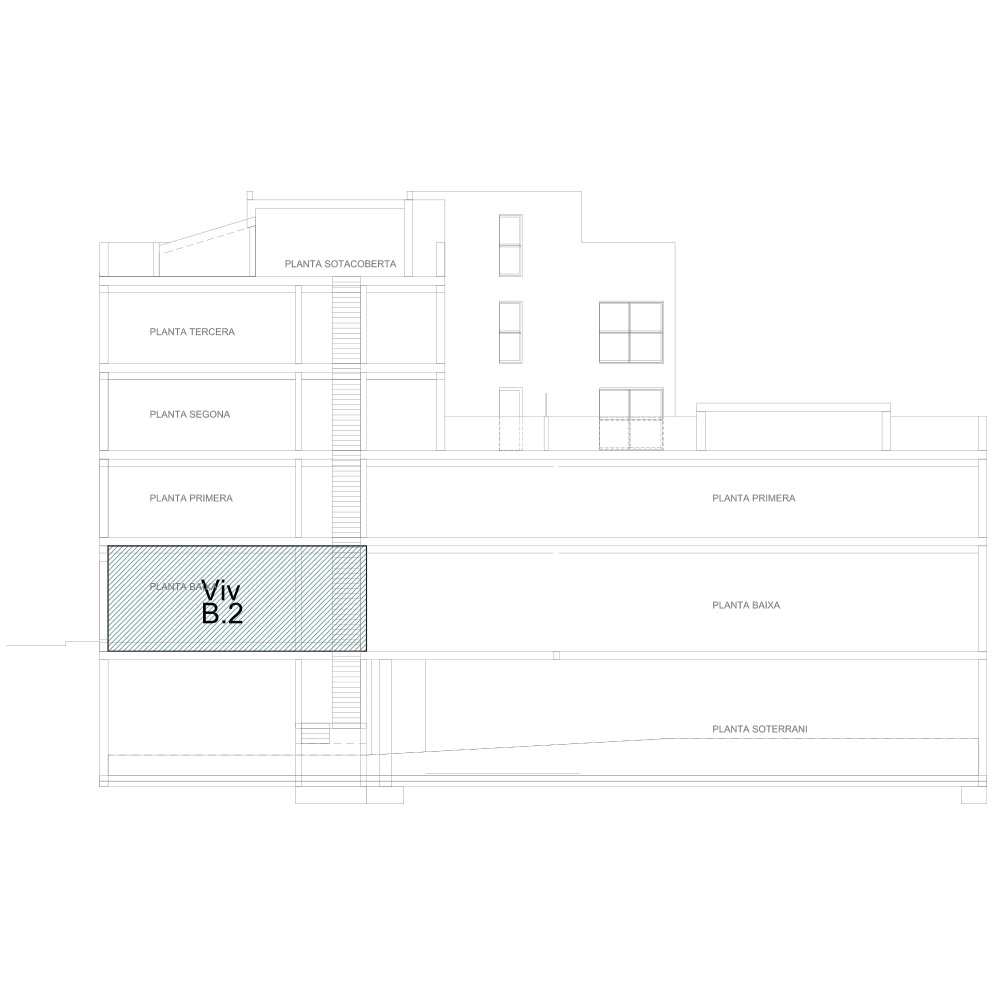
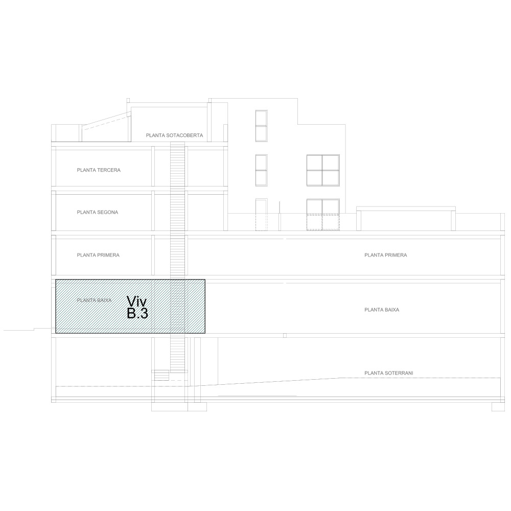
Planta baja (desde 285.000€)
Primera planta (desde 370.000€)
Segunda planta (desde 535.000€)
Tercera planta (desde 585.000€)
Condiciones especiales de lanzamiento
Con motivo del inicio de comercialización de Catalunya 26, las primeras 8 reservas formalizadas podrán acogerse a una ventaja económica exclusiva del 5% sobre el precio publicado.
Esta condición es limitada y aplicable únicamente a las primeras unidades reservadas.
Memoria de Calidades
ESTRUCTURA
La estructura del edificio será de hormigón armado, dimensionada y calculada conforme a la normativa vigente y al Código Técnico de la Edificación, con control de calidad realizado por organismo de control técnico homologado.
La cimentación se ejecutará según las características del terreno y el correspondiente estudio geotécnico, garantizando la seguridad estructural del edificio.
FACHADA
La fachada estará compuesta por cerramiento cerámico con acabado de obra vista combinado con revestimiento monocapa en determinadas zonas, incorporando aislamiento térmico para garantizar el cumplimiento de la normativa energética vigente.
El conjunto de la fachada estará diseñado para asegurar un correcto comportamiento térmico y acústico, así como una imagen arquitectónica contemporánea integrada con el entorno.
CUBIERTA
La cubierta dispondrá de la correspondiente impermeabilización y aislamiento térmico, garantizando la estanqueidad y el correcto comportamiento térmico del edificio.
Las zonas transitables estarán acabadas con pavimento adecuado para exterior y se dispondrán los elementos necesarios para la correcta evacuación de aguas pluviales y mantenimiento.
CARPINTERÍA EXTERIOR
Los cerramientos exteriores serán de aluminio con rotura de puente térmico y doble acristalamiento tipo Climalit o equivalente, garantizando un elevado nivel de aislamiento térmico y acústico.
Las persianas serán de aluminio con accionamiento motorizado en las estancias principales.
CARPINTERÍA INTERIOR
Las puertas interiores serán lacadas en blanco con herrajes de acero inoxidable o cromado.
La puerta de acceso a la vivienda será blindada con cerradura de seguridad.
Los armarios, en caso de existir según tipología, serán modulares con acabado interior y puertas abatibles o correderas según diseño.
DIVISIONES INTERIORES
Las divisiones interiores entre estancias se realizarán con tabiques de placa de yeso laminado con aislamiento interior de lana mineral para mejorar el comportamiento acústico.
La separación entre viviendas se ejecutará con sistema constructivo con aislamiento acústico reforzado según normativa.
PAVIMENTOS
En el interior de las viviendas se instalará pavimento de parquet sintético de alta calidad con rodapié lacado a juego, incluyendo salón, dormitorios, pasillos y cocina.
En los baños se instalará pavimento cerámico de primera calidad.
En terrazas y espacios exteriores se colocará pavimento de gres antideslizante apto para exterior.
PARAMENTOS VERTICALES
Las paredes interiores se entregarán con acabado de pintura plástica lisa en color claro.
En los baños se colocará revestimiento cerámico de primera calidad en las zonas necesarias.
COCINA
Las cocinas estarán equipadas con mobiliario de diseño actual con acabados laminados o lacados según proyecto.
La encimera será de material compacto tipo Silestone, cerámico o equivalente.
Incluirán placa de inducción, horno eléctrico, campana extractora y espacio para electrodomésticos integrables.
El pavimento será el mismo parquet sintético de alta calidad del resto de la vivienda.
BAÑOS
Los baños dispondrán de sanitarios de diseño actual en color blanco.
Los platos de ducha serán de resina o material equivalente, sin incluir la mampara o elemento equivalente.
La grifería será monomando con sistemas de ahorro de agua.
INSTALACIÓN ELÉCTRICA
La instalación eléctrica se realizará conforme al Reglamento Electrotécnico de Baja Tensión.
Las viviendas dispondrán de mecanismos de calidad y tomas según normativa.
La iluminación de zonas comunes será mediante sistemas de bajo consumo.
TELECOMUNICACIONES
Las viviendas dispondrán de preinstalación de fibra óptica y tomas conforme al Reglamento de Infraestructuras Comunes de Telecomunicaciones.
Videoportero electrónico con pantalla en cada vivienda.
FONTANERÍA
La instalación de agua se realizará con tuberías de polietileno reticulado o equivalente.
Las viviendas dispondrán de llaves de corte independientes.
En terrazas se dispondrá de toma de agua según tipología.
CLIMATIZACIÓN Y ACS
El sistema de producción de agua caliente sanitaria y climatización será mediante aerotermia de alta eficiencia energética.
ENERGÍA RENOVABLE
La promoción incorporará instalación de placas solares de uso comunitario para mejorar la eficiencia energética global del edificio y reducir el consumo energético.
ASCENSOR
Ascensor eléctrico de bajo consumo con puertas automáticas y acabados interiores de calidad, con acceso a todas las plantas, incluido el aparcamiento.
APARCAMIENTO
El aparcamiento dispondrá de pavimento de hormigón acabado con tratamiento antipolvo y ventilación según normativa.
Puerta de acceso motorizada con mando a distancia.
ZONAS COMUNES
El edificio dispondrá de zona comunitaria con solárium, concebida como espacio de descanso y uso de los residentes.
Este espacio contará con ducha exterior con toma de agua fría para uso de los residentes.
A nivel estructural se prevé un dimensionado compatible con la posible implantación futura de una lámina de agua o piscina de pequeñas dimensiones, sin que esta previsión implique su ejecución ni forme parte de las prestaciones de la promoción.
Las zonas comunes se entregarán con pavimento cerámico y materiales de calidad.
EFICIENCIA ENERGÉTICA
El edificio se proyecta con criterios de eficiencia energética conforme a la normativa vigente, incorporando aislamientos y sistemas eficientes para reducir la demanda energética de las viviendas.
POSTVENTA
El promotor ofrecerá servicio de atención postventa para la resolución de incidencias dentro de los plazos establecidos, garantizando un trato directo y una respuesta ágil.
NOTA FINAL
Los materiales, soluciones constructivas, instalaciones y acabados descritos en la presente memoria podrán ser modificados por la dirección facultativa o por la propiedad por motivos técnicos, de suministro, por exigencias de la Administración, por adaptación a la normativa vigente, por criterios técnicos o por necesidades derivadas del desarrollo del proyecto o de la obra, manteniendo en todo caso un nivel de calidad equivalente o superior.























































































